FIND YOUR PERFECT HOME
Get the GTA Real Estate Representation You Deserve
Contact Us For Details
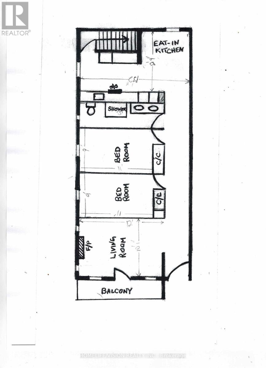
1 - 302 Sumach Street
Toronto (Cabbagetown-South St. James Town), Ontario
M5K 3K5
MLS® Number: C12569028
House- 700 Sq Ft Square Feet
- 2
Bedrooms - 1
Bathrooms













Property Details
Prime Cabbagetown, Quaint 6-Unit Building. Unit Gutted To Studs And Rebuilt approx 7 Years Ago. Rare Large Unit 1100 Sq. Ft., With Fireplace, Balcony 100 Sq. Ft. 2 Bedrooms, Living, Dining, Kitchen, Hardwood Floors, Lessor Pays For Laundry, 9 Foot Ceilings, Light-Filled. Walk Or Bike To Riverdale Farm, Parliament Retail/Restaurants/Coffee Shops, Downtown, Don Valley, Ryerson, U Of T, Aquatic Centre, Etc. Tree-Lined Streets. Largest Collection Of Victorian Architecture In N. America. Eclectic And True Neighborhood. Contemporary Finishes. 24 Hour Surveillance. Please View Video Tour. (id:6365)
Mortgage Calculators Virtual Tour
- Listing ID: C12569028
- Property Type: Single Family
- List Price: $Contact Us For Details
- 700 Sq Ft
Property Location
1 - 302 SUMACH STREET, Toronto (Cabbagetown-South St. James Town), Ontario M5K 3K5 Canada
View Map on Google
Listing By: HOMELIFE/VISION REALTY INC.

